Проект бани "ОБНБ - 3605"
Характеристики
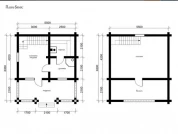
Площадь
55.40 м2
Этажность
Одноэтажная
Габариты
6х5 м
Материал стен:
Оцилиндрованное бревно
С верандой
Да
С комнатой отдыха
Да
С террасой
Да
Выберите материал
Стоимость от
-20%
руб
руб
По данному проекту построено
70 домов
Предложение не является публичной офертой. Стоимость является ориентировочной и приведена исключительно в информационных целях.
Описание проекта
Проект "ОБНБ - 3605" - хороший одноэтажная дом для постоянного проживания из оцилиндрованного бревна с верандой, с комнатой отдыха, с террасой. Площадь гаража 55.40 м2 с размерами 5 на 6.
Компания Брус Дом Строй осуществляет качественное строительство дома "ОБНБ - 3605". Обращаем ваше внимание, на то, что стоимость строительства напрямую зависит от комплектации и технологии строительства. Для предоставления подробной информации и консультирования, можно обратится по номеру: +7 (967) 555-36-93.
Компания Брус Дом Строй осуществляет качественное строительство дома "ОБНБ - 3605". Обращаем ваше внимание, на то, что стоимость строительства напрямую зависит от комплектации и технологии строительства. Для предоставления подробной информации и консультирования, можно обратится по номеру: +7 (967) 555-36-93.
Получите проект на почту
Оставьте заявку на получение проекта на почту
Выгодный кредит на строительство
Ипотека - легко и доступно!
от 5%
Первонач. взнос от 10%
до 30 лет
Высокий кредитный лимит
до 10 000 000 руб
Ипотечный калькулятор
Расчитайте стоймость ипотеки онлайн
Стоимость дома
1 000 000
₽
Ставка по кредиту
5
%
Срок
10
лет
Первоначальный взнос
100 000
₽
10
%
Ваш платеж
от
9 750
₽/мес
Сумма кредита
900 000
₽
Срок
10
лет
Сделай первый шаг к красивому участку
Оставьте заявку и наш специалист свяжется с вами в ближайшее
время
2
Согласуем
Подберем проект для Вас, внесем изменения под
параметры вашего дома
3
Подпишем
Обговариваем сроки работ и удобный для Вас способ
оплаты, заключаем договор
4
Доставим
Бережно доставим и выгрузим материалы для
строительства
5
Построим
Проведем полный комплекс строительных и отделочных
работ
6
Сдадим
Вы принимаете нашу работу, подписываете акт
сдачи-приемки дома, после заезжаете в дом своей мечты
Спецпредложения
Наша компания предлагает выгодные предложения. Подробности уточняйте у менеджера.
Почему лучше заказывать дом у нас
Необходимо реализовать успешное строительство с полноценным выполнением установленных законодательством требований? Компания «Горизонталь» в своей работе обладает всем необходимым, чтобы квалифицированно реализовать проект любой степени сложности! Мы используем только высококачественные стройматериалы и применяем успешные современные технологии!
Часто задаваемые вопросы
Можно ли построить дом по индивидуальному проекту?
Да, мы предлагаем строительство как по готовым проектам, так и по индивидуальным, разработанным с учетом всех пожеланий клиента.
Какой порядок работы с клиентом?
Мы начинаем с консультации и разработки проекта, после чего подписываем договор и приступаем к строительным работам. На всех этапах заказчик информируется о ходе выполнения работ.
Какие технологии и материалы вы используете?
Мы используем современные строительные технологии и материалы высокого качества, что позволяет создавать долговечные и энергоэффективные здания.
Какие строительные услуги вы предоставляете?
Мы предлагаем полный спектр строительных услуг, включая проектирование, строительство коммерческих, промышленных и административных объектов, а также выполнение отделочных работ и реконструкцию зданий.
Какие технологии строительства вы используете?
Мы используем современные строительные технологии, включая монолитное строительство, строительство из блоков и кирпича, что обеспечивает высокую прочность и долговечность объектов.
Каковы сроки строительства?
Сроки зависят от масштабов и сложности проекта. В среднем строительство коммерческого здания занимает от 6 до 12 месяцев, однако точные сроки определяются на этапе разработки проекта.
Не нашли ответ на свой вопрос?
Задайте его нашим специалистам
Контакты
Средняя оценка построенного дома - 9.6 на основании 2 отзывов и 2 оценок




